一种具有除雪功能的轨道检测车

本发明涉及轨道检测车,尤其是涉及一种具有除雪功能的轨道检测车。
背景技术:
1、轨道检测车(简称轨检车)是用来检测轨道的几何状态和不平顺状况,以便评价轨道几何状态的特种车辆。它是保障行车安全、平稳、舒适和指轨道道养护维修的重要工具,目前的轨道检测车,通常采用内置惯性基准轨道不平顺测量装置在沿着轨道检测过程中,利用惯性原理,通过测量车体的加速度和角速度等参数,来计算轨道的不平顺状况。它能够实时、准确地反映轨道的几何状态。
2、现有技术中的轨道检测车,在使用过程中,尤其针对冬季积雪情况想下进行检测使用,为了保证检测准确性,通常搭载除雪机构进行除雪处理,然而目前在实际除雪操作时,尽管采用物理扫雪的方式将轨道上积雪扫除,但是在冬季环境中,扫除积雪的轨道由于表面湿滑,在后续与轨道车轮接触时,摩擦力大大减小,且列车的制动系统在湿滑的轨道上可能无法正常工作,导致列车难以控制速度和停车,同时轻微的冰雪会导致钢轨摩擦系数降低,钢轨打滑,容易造成牵引机车的动轮发生空转,不能有效加大牵引力,以致造成列车爬坡途停事故。
3、此外,现有技术中的轨道检测车,在使用过程中,在进行铁轨中部的轨身内陷处进行除雪时,通常采用检测车前端的铲雪框进行铲雪,然而在沿着轨道前进处理时,铲雪框内部逐渐填充满积雪,实际在运行检测时,难以快速清理出铲雪框中的积雪,往往需要停车配合人工完成积雪处理,实际中间操作较多,频繁停车处理,大大降低了除雪和检测效率。
技术实现思路
1、本发明要解决的技术问题是:为了解决现有轨道检测车,在使用过程中,在进行铁轨中部的轨身内陷处进行除雪时,通常采用检测车前端的铲雪框进行铲雪,然而在沿着轨道前进处理时,铲雪框内部逐渐填充满积雪,实际在运行检测时,难以快速清理出铲雪框中的积雪,往往需要停车配合人工完成积雪处理,实际中间操作较多,频繁停车处理,大大降低了除雪和检测效率的问题,现提供了一种具有除雪功能的轨道检测车。
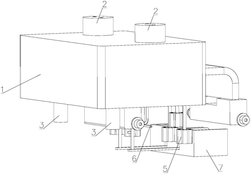
2、本发明解决其技术问题所采用的技术方案是:一种具有除雪功能的轨道检测车,包括设置在轨道上的车体,所述车体上设置有若干料仓、抛料组件、输送组件、清扫组件、吹雪组件和铲雪组件,若干所述料仓用于存储不同物料,所述输送组件用于将若干料仓中的物料进行混合并将混合后的物料输送至抛料组件内,所述抛料组件用于将混合后的物料抛至轨道上,所述清扫组件用于将轨道上的积雪清除,所述吹雪组件用于轨道上的积雪吹除,所述清扫组件和抛料组件相互传动连接,所述吹雪组件和铲雪组件相互传动连接,所述输送组件与铲雪组件相互传动连接,所述车体上设置有用于驱动输送组件运行的第一驱动机构;
3、所述抛料组件包括转动筒,所述转动筒与输送组件的输出端连通,所述转动筒底部设置有出料口,所述清扫组件包括转动安装在车体上的顶刷和两个侧面刷,所述顶刷用于对轨道顶部清扫,两个所述侧面刷分别用于对轨道两侧清扫,所述顶刷设置在两个侧面刷之间,所述顶刷、两个侧面刷和转动筒之间相互传动连接,所述车体上设置有第二驱动机构,所述第二驱动机构用于驱动顶刷转动。相比于现有技术,本方案通过在车体上的若干料仓将各种物料分开存储,由第一驱动机构带动输送组件并将料仓内的物料进行混合输送至抛料组件的转动筒内,同时,铲雪组件将轨道间的雪进行铲除,吹雪组件将轨道上的雪吹除,清扫组件由第二驱动机构动并对轨道进行清扫除雪,同时带动抛料组件的转动筒转动,转动筒通过离心力将混合物料由出料口抛至轨道的上表面,各个组件间相互联动配合,提高除雪效率。
4、为了实现抛料组件与输送组件间传动连接,优选地一些实施方式,所述抛料组件还包括飞轮一,所述飞轮一通过连接轴固定安装在转动筒上,所述连接轴转动安装在车体上,所述车体上设置有与转动筒相匹配的凹槽,所述凹槽开口朝下,所述转动筒设置在凹槽内,所述顶刷设置有飞轮二,所述飞轮一和飞轮二之间通过皮带相互传动连接。转动筒通过连接轴转动安装在车体上,飞轮一和飞轮二通过皮带相互传动连接,实现输送组件和抛料组件之间的传动连接,也就是在输送组件输送物料时能够带动抛料组件的转动筒转动,实现将物料抛至轨道,结构简单,便于制造和安装,两者相互传动连接实现提高物料的输送和抛至物料的效率。
5、为了实现输送组件,优选地一些实施方式,所述输送组件包括输送仓和螺旋输送杆,所述输送仓位于若干料仓的下方,所述输送仓内设置有输送通道,所述螺旋输送杆转动安装在输送通道内,若干所述料仓的底部与输送通道的一端连通,所述输送通道的另一端与转动筒连通,所述第一驱动机构与螺旋输送杆传动连接。通过将螺旋输送杆设置在输送仓的输送通道内,并且料仓位于输送仓的上方并与其连通,其结构简单。
6、为了实现铲雪组件,优选地一些实施方式,所述铲雪组件包括铲雪框、活动铲和限位撞板,所述铲雪框包括下底板,所述下底板的上表面设置有后挡板和两个侧板,两个所述侧板相对设置在下底板的两侧,所述后挡板设置在两个侧板之间并位于侧板的一端,所述下底板、后挡板和两个侧板之间形成半包围结构,所述活动铲设置在半包围结构内,所述活动铲与第一驱动机构传动连接,所述限位撞板设置在后挡板上,所述限位撞板用于限制活动铲的位移范围并能够相互碰撞,实现活动铲震动并将上升后活动铲上的积雪自动排出。通过第一驱动机构带动活动铲在铲雪框内不断上升下降,将轨道间的雪进行铲除,限位撞板在活动铲上升至一定高度后相互碰撞并使得活动铲产生震动,将活动铲内的雪进行排出。
7、为了实现铲雪组件与输送组件的传动连接,优选地一些实施方式,所述车体上设置有存储筒和连接筒,所述存储筒内滑动安装有推板并形成第一腔,所述第一腔内设置有弹簧一,所述推板的一端与第一驱动机构传动连接,所述活动铲的一端滑动安装在连接筒上并形成第二腔,所述第二腔内设置有弹簧二,所述第一腔和第二腔相互连通,所述第一腔和第二腔内设置有介质。通过存储筒内滑动设置推板并形成第一腔,第一腔内设置有复位用的弹簧一,活动铲的一端滑动设置在连接筒内并形成第二腔,第二腔内设置有复位用的弹簧二,第一腔和第二腔相互连通,并且内部设置有介质,通过推动推板在第一腔内位移,将介质输送至第二腔内,并带动第二腔内的活动铲位移,活动铲上升,实现将铲雪框内的雪排出。
8、为了实现第一驱动机构,优选地一些实施方式,所述第一驱动机构为电机,所述电机的输出端与螺旋输送杆相互传动连接,所述电机的输出端上安装有凸轮,所述凸轮的外轮廓面与推板相互接触。通过电机带动螺旋输送杆转动,同时在电机的输出端上安装了凸轮,凸轮推动推板在第一腔内位移,弹簧一实现推板在第一腔内位移并复位。
9、为了实现吹雪组件,优选地一些实施方式,所述吹雪组件包括弹性气囊和吹气嘴,所述弹性气囊的一端固定安装在车体上,所述弹性气囊的另一端与推板固定连接,所述吹气嘴与弹性气囊连通,所述吹气嘴用于将轨道上的积雪吹除。通过推板的位移带动弹性气囊被不断地拉伸和压缩,实现吹气嘴的进气和吹起,对轨道上的学进行间歇式吹除。
10、为了保证轨道上积雪吹除稳定可靠,优选地一些实施方式,所述吹气嘴有两个,两个所述吹气嘴分别与两侧的轨道相对应设置。
11、为了实现活动铲,优选地一些实施方式,所述活动铲包括两个相对设置的活动铲,每个所述活动铲的上表面为导向面,所述导向面由活动铲靠近轨道的一端向另一端逐渐向上倾斜设置,所述导向面的高端低于铲雪框的上表面。
12、优选地一些实施方式,所述活动铲上设置有连接杆,所述铲雪框上开设有与连接杆相匹配的滑槽,所述连接杆设置在滑槽内,所述滑槽的一端贯穿铲雪框的上表面并形成开口朝上的结构,所述限位撞板设置在滑槽的开口端并将连接杆限制在滑槽内。
13、本发明的有益效果是:本发明一种具有除雪功能的轨道检测车在使用时,通过在车体上的若干料仓将各种物料分开存储,由第一驱动机构带动输送组件并将料仓内的物料进行混合输送至抛料组件的转动筒内,同时,铲雪组件将轨道间的雪进行铲除,吹雪组件将轨道上的雪吹除,清扫组件由第二驱动机构带动并对轨道进行清扫除雪,同时带动抛料组件的转动筒转动,转动筒通过离心力将混合物料由出料口抛至轨道的上表面,各个组件间相互联动配合,提高除雪效率,避免了现有轨道检测车,在使用过程中,在进行铁轨中部的轨身内陷处进行除雪时,通常采用检测车前端的铲雪框进行铲雪,然而在沿着轨道前进处理时,铲雪框内部逐渐填充满积雪,实际在运行检测时,难以快速清理出铲雪框中的积雪,往往需要停车配合人工完成积雪处理,实际中间操作较多,频繁停车处理,大大降低了除雪和检测效率的问题。
技术研发人员:张屹,苗宇航
技术所有人:常州大学
备 注:该技术已申请专利,仅供学习研究,如用于商业用途,请联系技术所有人。
声 明 :此信息收集于网络,如果你是此专利的发明人不想本网站收录此信息请联系我们,我们会在第一时间删除
