一种化学材料冷却设备的制作方法

本技术涉及化学材料,具体为一种化学材料冷却设备。
背景技术:
1、在化学反应、药物合成、高分子聚合等过程中,化学材料需要在一定的温度下进行冷却,以确保反应的顺利进行和产物的质量。
2、传统的化学材料冷却设备通常采用水冷或风冷的方式,但这些方式存在一些问题,其在冷却过程中会受到环境温度和设备散热能力的影响,导致冷却效率低下,且整体结构不够稳定,对于内部控制也较为不方便,故而提出了一种化学材料冷却设备。
技术实现思路
1、(一)解决的技术问题
2、针对现有技术的不足,本实用新型提供了一种化学材料冷却设备,具备完善的设备布局且结构稳定便于控制等优点,解决了冷却效率不高且不便于控制的问题。
3、(二)技术方案
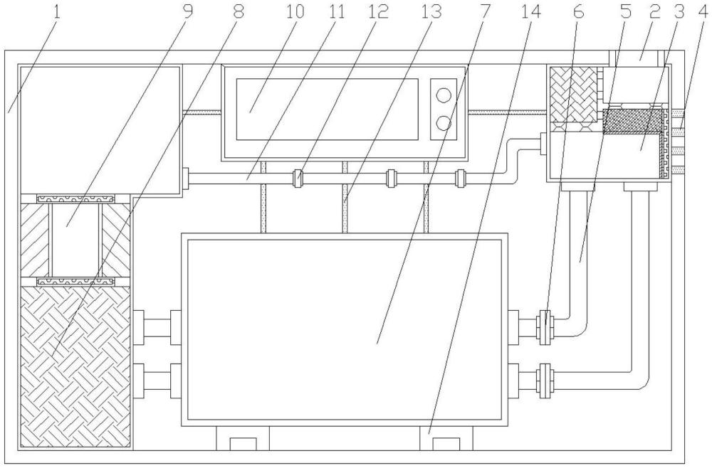
4、为实现上述完善的设备布局且结构稳定便于控制目的,本实用新型提供如下技术方案:一种化学材料冷却设备,包括外壳、制冷系统和循环系统,外壳的内侧设置有制冷系统和循环系统,制冷系统设置在外壳的内腔右上角,循环系统设置在外壳的内腔左侧;
5、所述外壳的顶部右侧开设有进气管口,所述外壳的右壁侧面设置有散热器,所述外壳的内腔底部中心处固定安装有冷却室,所述外壳的内腔顶部中心处固定安装有控制系统;
6、所述制冷系统的底部设置有与冷却室相连通的输送管道,所述进气管口固定连接在制冷系统的顶部,所述循环系统的右侧设置有与制冷系统相连通的循环管道,所述循环系统的内侧固定安装有循环泵。
7、作为本实用新型的一种优选技术方案,所述冷却室的底部固定安装有位于外壳内腔底部的固定支撑柱,所述冷却室的顶部设置有与控制系统相连接的耐腐蚀电线,所述控制系统的外表面设置有显示屏和操作按钮。
8、上述优选技术方案的有益效果为:固定支撑柱可以确保冷却室的稳定性和可靠性,减少因设备振动或外部因素引起的位移或变形,耐腐蚀电线的设计可以确保电线不易受到化学腐蚀的影响,延长设备的使用寿命。
9、作为本实用新型的一种优选技术方案,所述制冷系统包括制冷剂,所述制冷剂的顶部与进气管口相连通,所述制冷剂的左侧设置有通气管,通过通气管固定连接有压缩机,所述压缩机的底部右侧通过通气管固定连接有冷凝管,所述冷凝管的右侧固定连接有与散热器相连通的蒸发器,所述冷凝管和蒸发器的相交面设置有换气层,所述换气层的底部固定安装有储气室,所述制冷剂和冷凝管之间设置有支撑块,所述压缩机和储气室之间设置有支撑块。
10、上述优选技术方案的有益效果为:通过优化制冷系统的结构和选用高效的制冷剂,可以提高制冷效率,确保设备能够快速地将化学材料冷却到所需的温度范围,有助于提高生产效率和产品质量,且将蒸发器产生的热气从散热器散发出去,保障内部温度控制。
11、作为本实用新型的一种优选技术方案,靠近冷却室的所述输送管道外表面固定安装有计量阀,所述计量阀与控制系统相匹配。
12、上述优选技术方案的有益效果为:计量阀可以精确控制进入冷却室的化学材料的流量,有助于确保化学材料在冷却过程中能够均匀受热,提高冷却效果和产品质量。
13、作为本实用新型的一种优选技术方案,所述循环泵包括流通管道,所述流通管道的上下两侧均固定安装有循环阀门,两个所述循环阀门的内侧均开设有管阀孔洞,两个所述循环阀门的左右两侧均设置有固定卡栓,所述固定卡栓的外表面开设有与循环系统相卡接的定位孔。
14、上述优选技术方案的有益效果为:循环阀门可以增强设备的稳定性和可靠性,且可控制循环系统的流量和方向,使其在冷却室内更加均匀地流动,从而提高冷却效率。
15、作为本实用新型的一种优选技术方案,所述制冷系统和循环系统的相对侧均设置有与控制系统相连接的耐腐蚀电线,所述循环管道远离循环系统的一端套接在制冷系统的左侧,所述循环管道与储气室相连通,所述循环管道的外表面套接有三个分段法兰。
16、上述优选技术方案的有益效果为:三个分段法兰可提高设备的可维护性和可装配性,方便维修人员对循环管道进行拆卸、维修或替换,降低了维修成本和时间。
17、(三)有益效果
18、与现有技术相比,本实用新型提供了一种化学材料冷却设备,具备以下有益效果:
19、该化学材料冷却设备,通过采用更高效的散热器和更合理的输送管道和循环管道的布局,同时优化制冷系统的内部结构,可以提高设备的散热能力和冷却效率,且借助循环系统将冷却室中产生的余热进行回收利用送往制冷系统中,便于减少能源浪费。
技术特征:
1.一种化学材料冷却设备,包括外壳(1)、制冷系统(3)和循环系统(8),外壳(1)的内侧设置有制冷系统(3)和循环系统(8),制冷系统(3)设置在外壳(1)的内腔右上角,循环系统(8)设置在外壳(1)的内腔左侧;
2.根据权利要求1所述的一种化学材料冷却设备,其特征在于:所述冷却室(7)的底部固定安装有位于外壳(1)内腔底部的固定支撑柱(14),所述冷却室(7)的顶部设置有与控制系统(10)相连接的耐腐蚀电线(13),所述控制系统(10)的外表面设置有显示屏和操作按钮。
3.根据权利要求1所述的一种化学材料冷却设备,其特征在于:所述制冷系统(3)包括制冷剂(31),所述制冷剂(31)的顶部与进气管口(2)相连通,所述制冷剂(31)的左侧设置有通气管(37),通过通气管(37)固定连接有压缩机(32),所述压缩机(32)的底部右侧通过通气管(37)固定连接有冷凝管(33),所述冷凝管(33)的右侧固定连接有与散热器(4)相连通的蒸发器(34),所述冷凝管(33)和蒸发器(34)的相交面设置有换气层(36),所述换气层(36)的底部固定安装有储气室(35),所述制冷剂(31)和冷凝管(33)之间设置有支撑块(38),所述压缩机(32)和储气室(35)之间设置有支撑块(38)。
4.根据权利要求1所述的一种化学材料冷却设备,其特征在于:靠近冷却室(7)的所述输送管道(5)外表面固定安装有计量阀(6),所述计量阀(6)与控制系统(10)相匹配。
5.根据权利要求1所述的一种化学材料冷却设备,其特征在于:所述循环泵(9)包括流通管道(91),所述流通管道(91)的上下两侧均固定安装有循环阀门(92),两个所述循环阀门(92)的内侧均开设有管阀孔洞(93),两个所述循环阀门(92)的左右两侧均设置有固定卡栓(94),所述固定卡栓(94)的外表面开设有与循环系统(8)相卡接的定位孔(95)。
6.根据权利要求3所述的一种化学材料冷却设备,其特征在于:所述制冷系统(3)和循环系统(8)的相对侧均设置有与控制系统(10)相连接的耐腐蚀电线(13),所述循环管道(11)远离循环系统(8)的一端套接在制冷系统(3)的左侧,所述循环管道(11)与储气室(35)相连通,所述循环管道(11)的外表面套接有三个分段法兰(12)。
技术总结
本技术涉及化学材料技术领域,且公开了一种化学材料冷却设备,包括外壳、制冷系统和循环系统,外壳的内侧设置有制冷系统和循环系统;所述外壳的顶部右侧开设有进气管口,所述外壳的右壁侧面设置有散热器,所述外壳的内腔底部中心处固定安装有冷却室,所述外壳的内腔顶部中心处固定安装有控制系统;所述制冷系统的底部设置有与冷却室相连通的输送管道,所述循环系统的内侧固定安装有循环泵。该化学材料冷却设备,通过采用更高效的散热器和更合理的输送管道和循环管道的布局,同时优化制冷系统的内部结构,可以提高设备的散热能力和冷却效率,且借助循环系统将冷却室中产生的余热进行回收利用送往制冷系统中,便于减少能源浪费。
技术研发人员:张文娟,刘甄,李艳粉,郭俊
受保护的技术使用者:陕西德施普电子智能科技有限公司
技术研发日:20231229
技术公布日:2024/9/2
技术研发人员:张文娟,刘甄,李艳粉,郭俊
技术所有人:陕西德施普电子智能科技有限公司
备 注:该技术已申请专利,仅供学习研究,如用于商业用途,请联系技术所有人。
声 明 :此信息收集于网络,如果你是此专利的发明人不想本网站收录此信息请联系我们,我们会在第一时间删除
