首页  专利技术  其他产品的制造及其应用技术

一种热驱动制冷机组及工艺的制作方法

2025-10-03 12:20:02 544次浏览
一种热驱动制冷机组及工艺的制作方法

本发明属于热驱动制冷/热泵,特别涉及一种热驱动制冷机组及工艺。


背景技术:

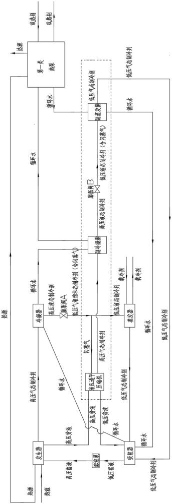
1、如图1所示,热驱动制冷机组即工艺是利用低品位余热驱动热力工质,通过工质(如氨气)的相变进行制冷,主要设备包括发生器、冷凝器、蒸发器、吸收器、溶液泵等。其中,冷凝器和吸收器中均通过循环水进行换热,循环水属于公用工程,从制冷机组带走热量后,温度升高,然后进入冷却塔,与空气进行热质交换将热量传给大气,恢复至常温后继续后面的循环。

2、以上制冷工艺中,制冷系统输入的能量为蒸发器与发生器吸收的热量,系统输出的能量为循环水带走的热量。根据能量守恒定律,蒸发器与发生器吸收的热量等于循环水带走的热量。循环水的温度受当季的空气湿球温度影响较大,因夏季空气湿球温度较高,循环水的温度也随之较高,其与制冷机组的传热温差较小,对一定换热面积的制冷机组,其带走的热量非常有限。因而影响制冷机组的制冷效率或无法制取深冷(更低温度下的制冷)。

3、此外,上述制冷工艺还存在以下问题:

4、一、从制冷机组出来的热源多数以放空或回流于用户管网系统中,热源的利用率不高。

5、二、高压液态制冷剂经膨胀阀节流减压成低压液态制冷剂,因绝热节流减压,势必发生闪蒸,使原纯液态的低压制冷剂变为气液饱和态的制冷剂(含闪蒸气)。

6、三、制冷机组中吸收器的低压贫液来自于发生器出来的高压贫液经减压阀节流减压,节流减压使的高压贫液熵增加,作功能力下降,此部分高压能量未得到利用。


技术实现思路

1、为解决上述背景技术中提到的问题,提供一种热驱动制冷机组及工艺。

2、通过以下制备工艺来实现上述目的:

3、本发明的第一目的在于提供一种热驱动制冷机组,包括发生器、冷凝器、吸收器、蒸发器,所述冷凝器的液态制冷剂出口上设有膨胀阀a,所述机组还包括第一类热泵和压缩冷凝蒸发组件;

4、所述压缩冷凝蒸发组件,用于对发生器出来的高压贫液进行减压以获得低压贫液进入吸收器中、对冷凝器出来的含闪蒸气的高压液态制冷剂进行减压后以获得低压液态制冷剂进入蒸发器中、利用所述高压贫液将所述闪蒸气压缩再被循环水冷凝成高压液态制冷剂之后再经过膨胀减压和蒸发变成低压气态制冷剂进入吸收器中以及利用所述闪蒸气的汽化对第一类热泵出来的循环水降温冷却以进入吸收器中;

5、所述第一类热泵用于利用压缩冷凝蒸发组件出来的循环水和发生器出来的热源与载热剂换热,所述发生器的热源出口连接第一类热泵的热源进口。

6、作为上述技术方案的进一步改进,所述压缩冷凝蒸发组件包括液压透平压缩机、副冷凝器、副蒸发器及膨胀阀b;

7、所述发生器的贫液进口连接液压透平压缩机的贫液进口,液压透平压缩机的贫液出口连接吸收器的贫液进口,所述液压透平压缩机的气体进管连接至冷凝器和蒸发器之间的液态制冷剂管道上,所述液压透平压缩机的气体出管连接副冷凝器的气态制冷剂进口;

8、所述冷凝器的循环水出口连接副冷凝器的循环水进口,所述副冷凝器的循环水出口连接第一类热泵的循环水进口,所述副冷凝器的液态制冷剂出口通过膨胀阀b连接副蒸发器的液态制冷剂进口;

9、所述第一类热泵的循环水出口连接副蒸发器的循环水进口,所述副蒸发器的循环水出口连接吸收器的循环水进口,所述副蒸发器的气态制冷剂出口连接吸收器的气态制冷剂进口。

10、作为上述技术方案的进一步改进,所述压缩冷凝蒸发组件具体为复合压缩蒸发冷凝器;

11、所述复合压缩蒸发冷凝器包括壳体以及依次位于壳体两端的管板、管箱筒节和封头,两端的管箱筒节和封头内部均设有一隔板,其中一端封头由隔板分隔的上下区域均设有循环水进口,另一端封头由隔板分隔的上下区域均设有循环水出口;其中,上端的循环水进口连接冷凝器的循环水出口,上端的循环水出口连接第一类热泵的循环水进口;下端的循环水进口连接第一类热泵的循环水出口,下端的循环水出口连接吸收器的循环水进口;

12、所述壳体内部对应两端的隔板分为上部的冷凝腔和下部的蒸发腔,所述冷凝腔和蒸发腔之间交替设有两组冷却管束和液位开关板,且所述冷凝腔和蒸发腔的内部均设有若干个与两端封头连通的换热管,换热管走循环水;

13、所述冷凝腔上设有制冷剂管道,所述制冷剂管道一侧设有贫液管道,所述制冷剂管道和贫液管道之间设有叶轮传动结构;其中,所述贫液管道的进口端连接发生器的贫液出口,贫液管道的出口端连接吸收器的贫液进口;

14、所述蒸发腔与下层的冷却管束之间设有连通管一,所述下层的冷却管束与上层的冷却管束之间设有连通管二,所述上层的冷却管束的出口连接吸收器;其中,所述连通管二连接吸收器的气态制冷剂进口。

15、作为上述技术方案的进一步改进,所述叶轮传动结构包括分别设于制冷剂管道和贫液管道上的腔体,所述腔体内设有叶轮,制冷剂管道和贫液管道内的叶轮之间设有传动结构。

16、作为上述技术方案的进一步改进,所述液位开关板包括固定连接壳体两端的上分布孔板和活动的下分布孔板以及位于上下分布孔板之间的液位开关组件,上分布孔板与下分布孔板上的孔相互错开。

17、作为上述技术方案的进一步改进,所述液位开关组件包括位于下分布孔板的孔下方的开关塞板,且开关塞板的上端与上分布孔板之间设有弹性件。

18、作为上述技术方案的进一步改进,所述冷却管束包括平行设置且用于气态制冷剂进入的分配管和用于气态制冷剂排出的汇总管,所述分配管和汇总管之间分布有若干个螺旋盘管。

19、作为上述技术方案的进一步改进,所述发生器的富液进口与吸收器的富液出口之间设有溶液泵。

20、本发明的第二目的在于提供一种热驱动制冷工艺,利用上述热驱动制冷机组,包括以下步骤:

21、(1)工质溶液进入发生器开始雾化,建立工质循环,当发生器到达一定液位时,提供热源进入发生器,蒸发出机组需要的气态制冷剂量;连通冷凝器-副冷凝器-蒸发器-副蒸发器-吸收器-发生器的制冷剂流程,建立制冷剂循环,为载冷剂进行制冷以为用户端供冷;

22、其中,将从发生器出来的高压贫液引入液压透平压缩机,抽取高压液态制冷剂经膨胀阀a节流减压产生的闪蒸气,并将闪蒸气压缩成高压气态制冷剂进入副冷凝器中继续冷凝成纯液态的低压液态制冷剂进入副蒸发器,继续后续的制冷循环;

23、(2)连通副蒸发器-第一类热泵-发生器流程,循环水从副冷凝器流出,进入第一类热泵,作为低温热源,从发生器出来的热源进入第一类热泵,作为驱动热源,为载热剂制热以为用户端供暖;

24、其中,从第一类热泵出来的循环水进入副蒸发器,从副冷凝器出来的高压液态制冷剂经膨胀阀b节流减压成含闪蒸气的低压液态制冷剂,进入副蒸发器中,吸收循环水的热量汽化成低压气态制冷剂并进入吸收器中,循环水在副蒸发器中被再次冷却,进入吸收器中,继续制冷循环。

25、本发明的第三目的在于提供另一种热驱动制冷工艺,利用上述热驱动制冷机组,包括以下步骤:

26、(1)工质溶液进入发生器开始雾化,建立工质循环,当发生器到达一定液位时,提供热源进入发生器,蒸发出机组需要的气态制冷剂量;连通冷凝器-复合压缩冷凝蒸发器-蒸发器-吸收器-发生器的制冷剂流程,建立制冷剂循环,为载冷剂进行制冷以为用户端供冷;

27、其中,从发生器出来的高压贫液引入复合压缩冷凝蒸发器的贫液管道,推动叶轮传动结构自身变为低压贫液的同时,在复合压缩冷凝蒸发器的制冷剂管道内形成真空,抽取高压液态制冷剂经膨胀阀a节流减压产生的闪蒸气,将闪蒸气变为高压气态制冷剂,并通引至冷凝腔的壳体内继续后续的制冷循环;

28、(2)连通复合压缩冷凝蒸发器-第一类热泵-发生器流程,循环水从冷凝腔一侧封头流出进入第一类热泵,作为低温热源,从发生器出来的热源进入第一类热泵,作为驱动热源,为载热剂制热以为用户端供暖;

29、其中,从第一类热泵出来的循环水进入蒸发腔,当冷凝腔内的液位达到设定高度一时,高压液态制冷剂通过液位开关板节流减压为含闪蒸气的中压液态制冷剂, 随着中压液态制冷剂不断地累积,当其液位达到设定高度二时,中压液态制冷剂通过液位开关板节流减压为含闪蒸气的低压液态制冷剂进入蒸发腔,低压液态制冷剂吸收来自第一类热泵的循环水的热量汽化成低压气态制冷剂,经下层冷却管束和上层冷却管束后,进入吸收器,循环水在蒸发腔中被再次冷却,进入吸收器中,继续制冷循环。

30、本发明的有益效果在于:

31、(1)本发明用第一类热泵代替冷却塔,将循环水作为低温热源,将从发生器出来的热源作为驱动热源,通过第一类热泵制取中温热水用于生活供暖。既回收循环水中蕴含的低品位热,又提高对热源和能源的利用率同时又降低冷却塔的能耗。

32、(2)本发明提供第一种热驱动工艺,将从发生器出来的高压贫液通过驱动液压透平压缩机,抽取节流减压产生的闪蒸气,使纯液态的低压制冷剂进入蒸发器中,将能极大地提高蒸发效率。同时液压透平压缩机将闪蒸气压缩成高压气态制冷剂,高压气态制冷剂在副冷凝器中被冷凝成高压液态制冷剂,高压液态制冷剂又可经膨胀阀减压成低压液态制冷剂,在副蒸发器中对循环水进行二次冷却,使地进入制冷机组的循环水温度更低,更加能提高机组的制冷效率以及制取深冷(更低温度下的制冷)。将高压贫液的压力能用于抽取并压缩闪蒸气,使地原节流减压产生的闪蒸气用于二次制冷,以实现对循环水的二次冷却。实现制冷机组中内部能量的深度利用,同时提高机组的制冷性能。

33、(3)本发明中的复合型压缩冷凝蒸发器将上述工艺优化方案中增加的设备(液压透平压缩机、副冷凝器、副蒸发器及膨胀阀b)集成为一台设备,可减少设备和管路的成本,极大地减小机组的占地面积,有利于机组的撬装化。

34、(4)复合型压缩冷凝蒸发器设置上、下两层液位开关组件代替膨胀阀b,使其高压液态制冷剂进行逐级减压。并设置上、下两层冷却管束,利用蒸发后得到的低温气态制冷剂的冷量,对在逐级减压前的高压液态制冷剂进行逐级过冷。可以极大化地减少因节流减压产生的闪蒸气,以获取更多纯液态的低压制冷剂,从而提高蒸发效率。

文档序号 : 【 39267087 】

技术研发人员:祝令辉,蒋英明,郭盼盼
技术所有人:安徽普泛能源技术有限公司

备 注:该技术已申请专利,仅供学习研究,如用于商业用途,请联系技术所有人。
声 明此信息收集于网络,如果你是此专利的发明人不想本网站收录此信息请联系我们,我们会在第一时间删除
祝令辉蒋英明郭盼盼安徽普泛能源技术有限公司
一种颗粒剂生产用冷却设备的制作方法 一种空调冷凝装置的制作方法
相关内容