一种用于正压蒸汽容器的排空口控温结构的制作方法

本发明涉及一种正压蒸汽容器,尤其是一种用于正压蒸汽容器的排空口控温结构。
背景技术:
1、图1中间展示了现有正压蒸汽容积上使用的空气排出口(下文简称:排空口)结构。蒸汽容积内部为蒸汽与空气的混合物。其中蒸汽会通过与容器内部的管板式换热器进行换热并冷凝至设备底部,而空气则会在容器上部积攒,并且在出口位置产生正压。并从排空口中排出。从图1中能够观察到传统的排空口由壳体、阀杆、弹簧及螺母组成。
2、图2中给出了排空阀开启时候的汽流的运行方向。设备内部压力大于弹簧力与阀杆重量时,汽流将阀杆向上推动。部分蒸汽与空气的混合物通过阀杆与壳体之间的间隙向上排出。由于乏汽具有一定的温度,喷射出的蒸汽易造成机旁人员灼伤并造成外部温度上升。
3、因此,需要设计一种用于正压蒸汽容器的排空口控温结构,能够适用于正压蒸汽容器的排空口位置,使得排空口位置喷出的汽流具有较低的温度。
技术实现思路
1、本发明提出了一种用于正压蒸汽容器的排空口控温结构,该结构能够适用于正压蒸汽容器的排空口位置,使得排空口位置喷出的汽流具有较低的温度。
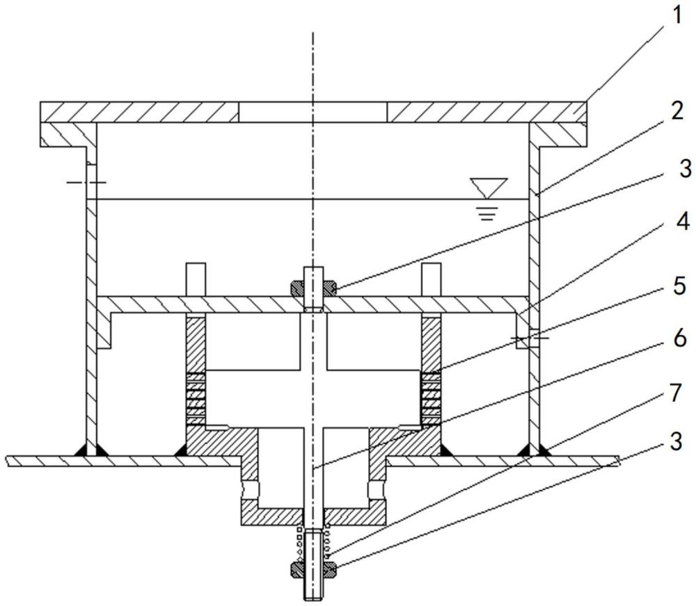
2、为实现上述目的,本发明的技术方案是:一种用于正压蒸汽容器的排空口控温结构,包括顶盖、壳体、环状套筒板、内套筒体、阀杆、弹簧及螺母,壳体与内套筒体焊接于设备顶板上面,壳体上面固定连接顶盖,顶盖上开有排空气口,以供空气通过;壳体上部开有冷却水出口,下部开有冷却水进口;阀杆置于内套筒体中,阀杆上部通过螺纹与螺母连接,并固定环状套筒板,阀杆下部与内套筒体之间设有套接在阀杆下部上的弹簧,并通过螺纹与螺母连接以及固定弹簧;内套筒体下部四周开有进气孔,用于使得蒸汽进入内套筒体;侧面开有喷射孔,用于将空气及乏汽喷射进入壳体内的水中。
3、进一步,顶盖、壳体及阀杆均为旋转对称结构。
4、进一步,阀杆与内部套筒之间的接触面作为密封面。
5、进一步,环状套筒板与阀杆之间通过加减垫片来改变阀杆与进水口之间的位置关系。
6、进一步,阀杆通过调节阀杆下部上的螺母来压缩弹簧以改变阀杆的开启力。
7、进一步,内套筒体下部开有阀杆孔,用于穿过阀杆;上部开有环状套筒限位槽,用于套装环状套筒板,防止阀杆发生旋转。
8、进一步,环状套筒板上设有内环、支撑杆与外环套筒;内环与阀杆接触,外环套筒与壳体接触,用于在阀门关闭的状态下封闭冷却水入口;支撑杆用于连接内环及外环套筒,支撑杆之间的空隙用于通过空气。
9、进一步,当阀门关闭时,阀杆与内部套筒通体的接触面在阀杆重力、环状套筒板、水压及弹簧力的影响下紧密贴合,使壳体内部的水与设备内部的带压蒸汽与空气混合物相互隔离。
10、进一步,当设备内部的蒸汽与空气混合物对于阀杆的向上的压力大于阀杆重力、环状套筒板重力、水压及弹簧力的总和时,阀杆与环状套同伴向上移动,阀杆开启,汽流通过内部套筒上的进气孔进入内套筒体,并经过内套筒体上的喷射孔喷入壳体内部的鼓泡区,与冷却水充分换热,随后空气通过顶板上的排气口流出;环状套筒板向上移动后,冷却水出口开启,冷却水通过入口进入壳体内部,并通过上部的冷却水出口流出壳体。
11、进一步,当乏汽与空气经过喷射孔射入鼓泡区,与冷却水充分混合,通过冷却水出口排出后,热量被冷却水吸收,使排除的空气温度也随之下降。
12、本发明的有益效果是:
13、本发明的一种用于正压蒸汽容器的排空口控温结构采用由顶盖、壳体、环状套同板、内套筒体、阀杆及弹簧组成的结构。该结构的使用能够有效避免正压容器向外排出空气的时候空气温度过高产生的安全隐患,确保容器排空口能够稳定向外输出低温空气。
技术特征:
1.一种用于正压蒸汽容器的排空口控温结构,其特征在于:包括顶盖、壳体、环状套筒板、内套筒体、阀杆、弹簧及螺母,壳体与内套筒体焊接于设备顶板上面,壳体上面固定连接顶盖,顶盖上开有排空气口,以供空气通过;壳体上部开有冷却水出口,下部开有冷却水进口;阀杆置于内套筒体中,阀杆上部通过螺纹与螺母连接,并固定环状套筒板,阀杆下部与内套筒体之间设有套接在阀杆下部上的弹簧,并通过螺纹与螺母连接以及固定弹簧;内套筒体下部四周开有进气孔,用于使得蒸汽进入内套筒体;侧面开有喷射孔,用于将空气及乏汽喷射进入壳体内的水中。
2.根据权利要求1所述的用于正压蒸汽容器的排空口控温结构,其特征在于:顶盖、壳体及阀杆均为旋转对称结构。
3.根据权利要求1所述的用于正压蒸汽容器的排空口控温结构,其特征在于:阀杆与内部套筒之间的接触面作为密封面。
4.根据权利要求1所述的用于正压蒸汽容器的排空口控温结构,其特征在于:环状套筒板与阀杆之间通过加减垫片来改变阀杆与进水口之间的位置关系。
5.根据权利要求1所述的用于正压蒸汽容器的排空口控温结构,其特征在于:阀杆通过调节阀杆下部上的螺母来压缩弹簧以改变阀杆的开启力。
6.根据权利要求1所述的用于正压蒸汽容器的排空口控温结构,其特征在于:内套筒体下部开有阀杆孔,用于穿过阀杆;上部开有环状套筒限位槽,用于套装环状套筒板,防止阀杆发生旋转。
7.根据权利要求1所述的用于正压蒸汽容器的排空口控温结构,其特征在于:环状套筒板上设有内环、支撑杆与外环套筒;内环与阀杆接触,外环套筒与壳体接触,用于在阀门关闭的状态下封闭冷却水入口;支撑杆用于连接内环及外环套筒,支撑杆之间的空隙用于通过空气。
8.根据权利要求1所述的用于正压蒸汽容器的排空口控温结构,其特征在于:当阀门关闭时,阀杆与内部套筒通体的接触面在阀杆重力、环状套筒板、水压及弹簧力的影响下紧密贴合,使壳体内部的水与设备内部的带压蒸汽与空气混合物相互隔离。
9.根据权利要求8所述的用于正压蒸汽容器的排空口控温结构,其特征在于:当设备内部的蒸汽与空气混合物对于阀杆的向上的压力大于阀杆重力、环状套筒板重力、水压及弹簧力的总和时,阀杆与环状套同伴向上移动,阀杆开启,汽流通过内部套筒上的进气孔进入内套筒体,并经过内套筒体上的喷射孔喷入壳体内部的鼓泡区,与冷却水充分换热,随后空气通过顶板上的排气口流出;环状套筒板向上移动后,冷却水出口开启,冷却水通过入口进入壳体内部,并通过上部的冷却水出口流出壳体。
10.根据权利要求9所述的用于正压蒸汽容器的排空口控温结构,其特征在于:当乏汽与空气经过喷射孔射入鼓泡区,与冷却水充分混合,通过冷却水出口排出后,热量被冷却水吸收,使排除的空气温度也随之下降。
技术总结
本发明涉及一种用于正压蒸汽容器的排空口控温结构,壳体与内套筒体焊接于设备顶板上面,壳体上面固定连接顶盖,顶盖上开有排空气口,以供空气通过;壳体上部开有冷却水出口,下部开有冷却水进口;阀杆置于内套筒体中,阀杆上部通过螺纹与螺母连接,并固定环状套筒板,阀杆下部与内套筒体之间设有套接在阀杆下部上的弹簧,并通过螺纹与螺母连接以及固定弹簧;内套筒体下部四周开有进气孔,用于使得蒸汽进入内套筒体;侧面开有喷射孔,用于将空气及乏汽喷射进入壳体内的水中。该结构的使用能够有效避免正压容器向外排出空气的时候空气温度过高产生的安全隐患,确保容器排空口能够稳定向外输出低温空气。
技术研发人员:张旭阳,王瑾程,彭杉,顾铮
受保护的技术使用者:中国船舶集团有限公司第七〇四研究所
技术研发日:
技术公布日:2024/8/20
技术研发人员:张旭阳,王瑾程,彭杉,顾铮
技术所有人:中国船舶集团有限公司第七〇四研究所
备 注:该技术已申请专利,仅供学习研究,如用于商业用途,请联系技术所有人。
声 明 :此信息收集于网络,如果你是此专利的发明人不想本网站收录此信息请联系我们,我们会在第一时间删除
